めんどうな面積測定が数クリックで完了!尺度設定と面積測定をやってみよう

こんにちは。BuddyBoard運営チームです。
建築図面のチェックをする際、スケールを使って長さを確認したりCADで面積を確認したりしていませんか?
わざわざCADを開いて確認するのも、手間がかかりますよね。
BuddyBoardなら、尺度を設定して、手書きやマウス操作で簡単におおよその値を測定できます。
尺度設定も、図面上に記載されている寸法値から逆算して自動で行うことができます。
今回は、尺度を設定し、面積を簡単に計算する方法についてご紹介します。
手順はたったの2ステップ。以下の手順でお試しください。
準備:図面サンプルを開きます
iPadまたはPCで図面サンプルを開いてください。
以下はiPadのBuddyBoardアプリでログインした場合の画面です。PCの場合は、こちらからログインしてください。もしまだアカウント作成がお済みでない場合は、「アカウント作成」へ進み、トライアル申込時のメールアドレスでアカウント作成を完了させてください。
①ご自分のID、パスワードでログインしてください。

②左にある「プライベート」スペースを開き「ノート」を選択し、1ページ目の「図面サンプル」を選択してください。

③図面サンプルが開きました。

これで準備ができました!
STEP1:尺度を入力してみよう
以下の手順で、まずは「尺度」を設定します。
①BuddyBoardの「測定」のアイコンを2回押します。

②「尺度」の入力ボックスを押すと入力画面が開くので、設定したい数字を入力します。

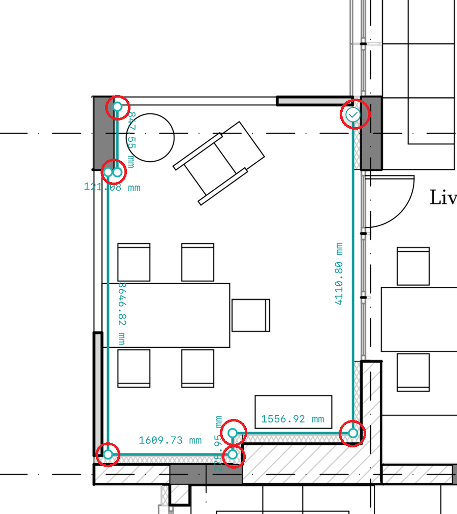
STEP2:面積を測定してみよう
続いて面積を測定してみましょう。
①BuddyBoardの「面積」のアイコンを押します。

②面積を測定したい場所を囲うように点を打ちます。

③最後にスタート地点のチェックマークを押して測定場所を囲み終えると、面積が表示されます。

■BuddyBoardへのログインはこちら
■BuddyBoardの詳しい操作マニュアルはこちら
【関連情報1】尺度自動算出機能紹介
図面上に引かれている寸法値から、尺度を自動で算出することもできます!詳しくはこちらのページの「測定」の中の「尺度を自動計算する」をご覧ください。
【関連情報2】事例紹介:大成建設株式会社
手描きで設計検討と情報伝達を効率化。大規模プロジェクトを効率的に推進!
いかがでしたか?
次回は、図面をBuddyBoardにアップロードする方法をご案内します。実際に業務で使っている図面で「リアルタイム共同編集」や「面積測定」を行ってみると、「あ、これは仕事のやり方が変わる!」というイメージをつかんでいただけると思います。
お楽しみに!